墨田区向島2丁目 / B1F+地上5階建て事務所複合賃貸マンション

墨田区向島2丁目6-9 RUYGO押上

施工物件の紹介です。
場所は東京都 墨田区 向島で
東京メトロ半蔵門線「押上」駅 徒歩10分
東武伊勢崎・大師線「とうきょうスカイツリー」駅 徒歩11分
都営浅草線「本所吾妻橋」駅 徒歩14分の立地です。

地下1階+地上5階ての賃貸マンションで総戸数は10戸です。

土地は前面道路以外は隣地であり、その幅は約350~400mm程度しかない狭小地です。

もちろん足場を組むことができないためRC-0工法の無足場工法を用いて施工しました。

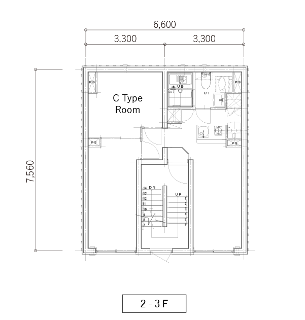
B1階に事務所があり、1・4・5階はフロアーに1Kが2戸、2と3階は3Kとなります。

・事務所スペース:20.96㎡
・Aタイプ:20.96㎡
・Bタイプ:20.96㎡
・Cタイプ:41.88㎡

物件DATA

建築地墨田区向島2丁目
用途地域商業地域
敷地面積64.72㎡
建築面積49.89㎡(建ぺい率77.09%)
延床面積299.34㎡
物件詳細B1F+地上5階建て事務所複合賃貸マンション
B1F:事務所スペース
B1F・1F・4F・5F 賃貸1K:7戸
2F・3F 賃貸3K:2戸
  • 家賃:1K¥72,000+3K¥99,000/室+事務所¥150,000
  • 土地代:3,000万円
  • 施工費:8,500万円
  • 総事業費:11,500万円
  • 利回り:7.33%

一覧へ戻る