CasaMusica北千住
東京都足立区千住5丁目 CasaMusica北千住

施工物件の紹介です。
場所は東京都足立区千住5丁目、東京メトロ千代田線 北千住駅 徒歩8分、京成本線 千住大橋駅 徒歩8分の立地です。
地下1階+地上5階ての賃貸マンションで総戸数は12戸です。

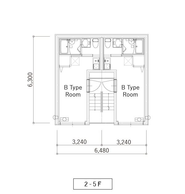
各階の間取りは基本的に同じです。
このマンションは外部、内部共に断熱材で包み込んだ省エネ性能の高い物件です。冬季に暖房費はもちろん、夏季の冷房費の節約に大変優れております。






物件DATA
| 建築地 | 東京都足立区千住5丁目 |
| 用途地域 | 商業地域 |
| 敷地面積 | 59.86㎡ |
| 建築面積 | 40.82㎡(建ぺい率68.19%) |
| 延床面積 | 489.84㎡ |
| 物件詳細 | B1F+地上4階建て賃貸マンション B1F~4F 賃貸1K:12戸 |
- 家賃:1K¥68,000
- 土地代:4,000万円
- 施工費:9,500万円
- 総事業費:13,500万円
- 利回り:7.25%